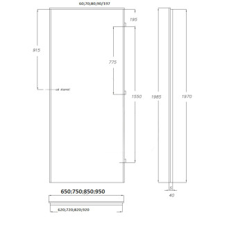
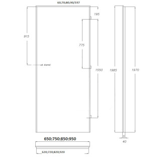
Vchodové dveře Naturel Entry levé 90 cm borovice bílá ENTRYBB90L
Vchodové dveře Naturel Entry levé 90 cm borovice bílá ENTRYBB90L
| Výrobce: | Výrobce: Naturel |
| Kód: | Kód: ENTRYBB90L |
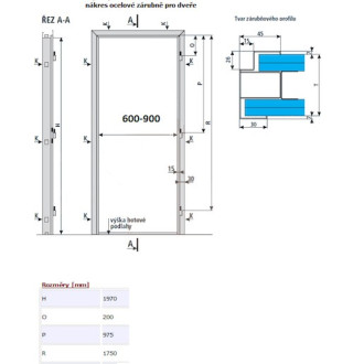
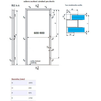
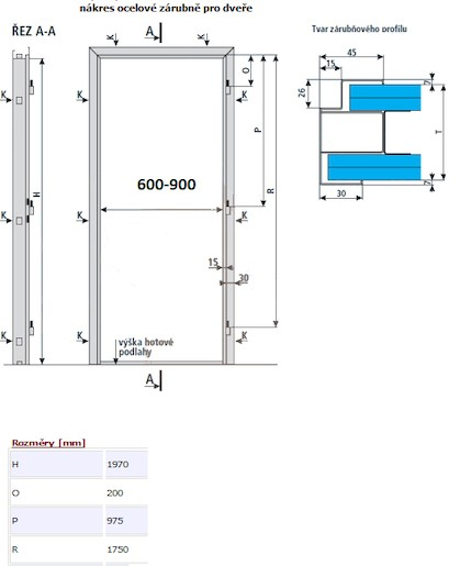
Vstupní dveře do bytu interiérové. Jednoduše vyměníte do stávající ocelové zárubně nebo do nové obložkové. Pevná výplň z děrované dřevotřísky a dvojitý obvodový rám. Rozteč zámku na vložku je 72mm.


