Mexen Lunar kabina prysznicowa uchylna prawa 85 x 90 cm, transparent, chrom - 834-085-090-01-00-P
Mexen Lunar kabina prysznicowa uchylna prawa 85 x 90 cm, transparent, chrom - 834-085-090-01-00-P
| Výrobce: | Výrobce: MEXEN |
| Kód: | Kód: 834-085-090-01-00-P |
🗓️ Kdy mohu očekávat doručení.
🚚 Jaké jsou možnosti doručení.
| Výrobce: | MEXEN |
| Adresa výrobce: | Vratimovská 681 80, Ostrava |
| E-mail: | info@mexen.cz |
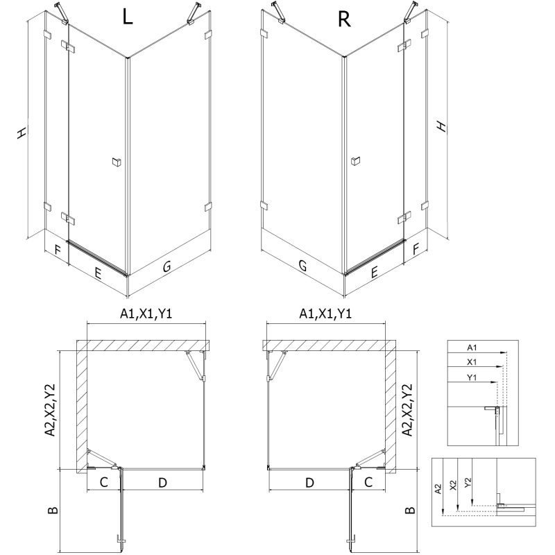
Specyfikacja produktu: Rozmiar: 85x90 cm (drzwi prawe 85 cm, ścianka 90 cm) Wysokość: 200 cm Strona montażu: Prawa Wejście: Drzwi uchylne Kolor szkła: Transparentne Wykończenie: Chrom Profil: Aluminiowy Rodzaj szkła: Hartowane Grubość szkła: 8 mm Powłoka ułatwiająca czyszczenie Możliwa regulacja szerokości Dwa systemy mocowania: - Z profilem, który umożliwia niwelacje nierówności ściany - Bez profilu w przypadku idealnie prostych ścian Możliwość montażu na brodziku lub płytkach Mechanizm unoszenia i opuszczania drzwi Mosiężne klamry i zawiasy zlicowane z taflą szkła Listwa magnetyczna oraz uszczelki elastomerowe odprowadzające wodę Aluminiowy próg uszczelniający drzwi


