Interiérové dveře Naturel Perma levé 80 cm jilm PERMA1J80L
Interiérové dveře Naturel Perma levé 80 cm jilm PERMA1J80L
| Výrobce: | Výrobce: Naturel |
| Kód: | Kód: PERMA1J80L |
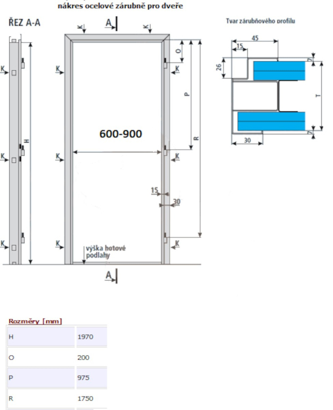
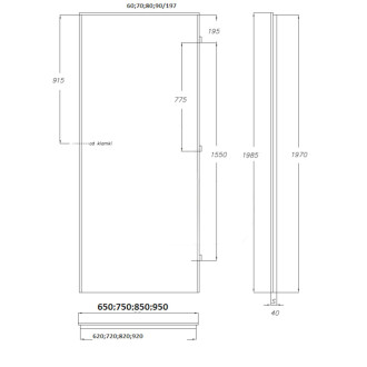
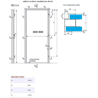
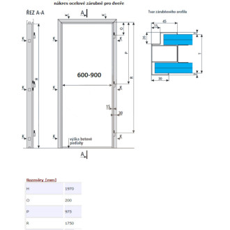
Moderní interiérové dveře, které budou ozdobou každého interiéru. Rámová konstrukce z MDF s kvalitní fólií v žádaném a velmi pěkném. Výplň je poskládána z panelů z MDF ve stejném dekoru a bílého matného skla tl. 4 mm. Zasklení bez zasklívacích rámečků působí velice estetickým dojmem. Dveře lze osadit jak do stávající ocelové zárubně v české normě nebo do obložkové zárubně. Dveře mají dozický zámek na klíč (rozteč 72 mm).


