Interiérové dveře Naturel Latino pravé 90 cm bílé LATINO1090P
Interiérové dveře Naturel Latino pravé 90 cm bílé LATINO1090P
| Výrobce: | Výrobce: Naturel |
| Kód: | Kód: LATINO1090P |
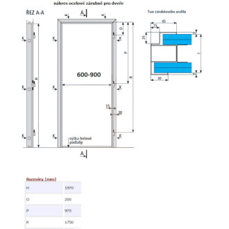
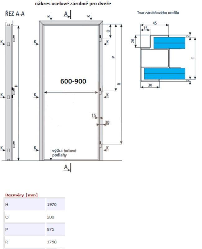
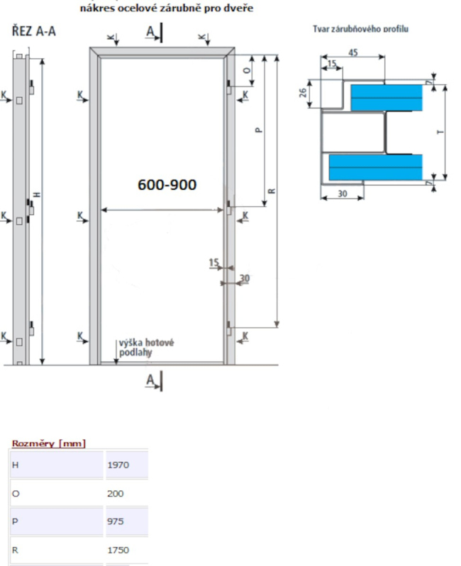
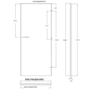
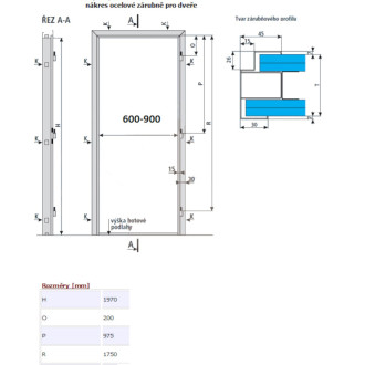
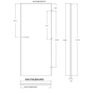
Moderní celolakované interiérové dveře, které budou ozdobou každého interiéru. Desková konstrukce s dřevěným rámem, voštinovou výplní, ekologický UV vytvrzený lak. Dveře lze osadit jak do stávající ocelové zárubně v české normě nebo do obložkové zárubně. Dveře mají dozický zámek(WK) (rozteč 72 mm).


