Interiérové dveře Naturel Latino pravé 60 cm bílé LATINO3060P
Interiérové dveře Naturel Latino pravé 60 cm bílé LATINO3060P
| Výrobce: | Výrobce: Naturel |
| Kód: | Kód: LATINO3060P |
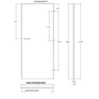
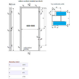
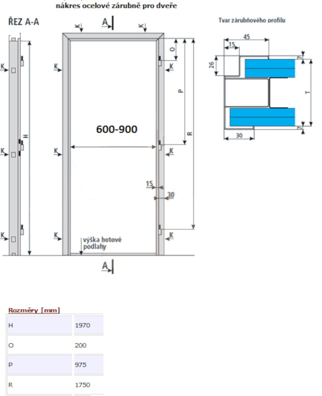
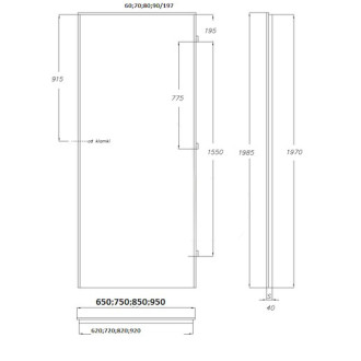
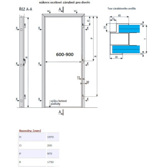
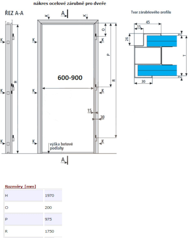
Moderní celolakované interiérové dveře, které budou ozdobou každého interiéru. Desková konstrukce s dřevěným rámem, voštinovou výplní, ekologický UV vytvrzený lak. Dveře lze osadit jak do stávající ocelové zárubně v české normě nebo do obložkové zárubně. Dveře 60 mají WC zámek (rozteč 72 mm) a pasuje k nim klika v provedení s WC knoflíkem.
Mohlo by Vás zajímat


