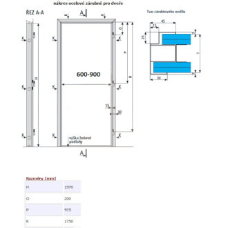
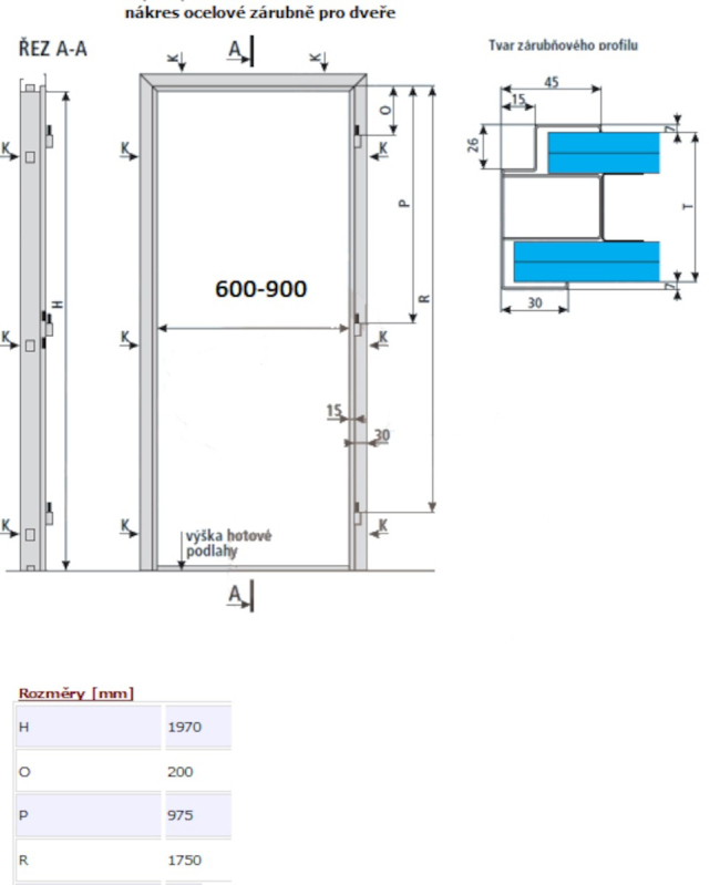
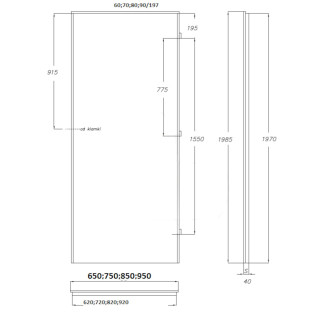
Interiérové dveře Naturel Deca pravé 90 cm jilm DECA30J90P
Interiérové dveře Naturel Deca pravé 90 cm jilm DECA30J90P
| Výrobce: | Výrobce: Naturel |
| Kód: | Kód: DECA30J90P |
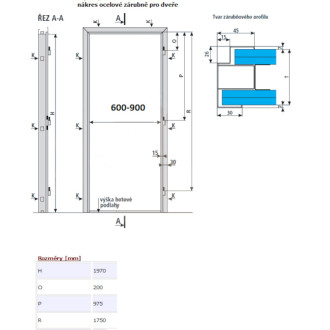
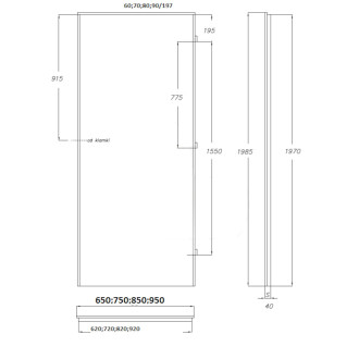
Moderní interiérové dveře, které budou ozdobou každého interiéru. Desková konstrukce s dřevěným rámem, voštinovou výplní, bílé matné sklo tl. 4 mm, odolná 3D fólií v žádaném a velmi pěkném dekoru. Dveře lze osadit jak do stávající ocelové zárubně v české normě nebo do obložkové zárubně. Dveře mají dozický zámek na klíč (WK) (rozteč 72 mm).


