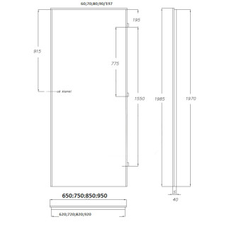
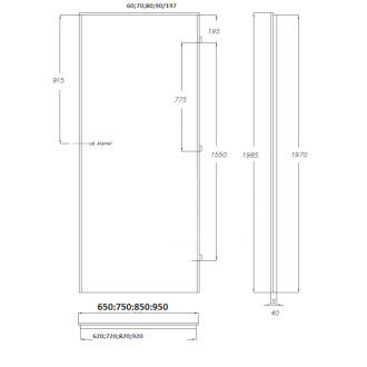
Interiérové dveře Naturel Deca pravé 60 cm jilm DECA30J60P
Interiérové dveře Naturel Deca pravé 60 cm jilm DECA30J60P
| Výrobce: | Výrobce: Naturel |
| Kód: | Kód: DECA30J60P |
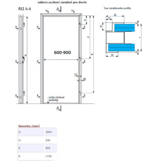
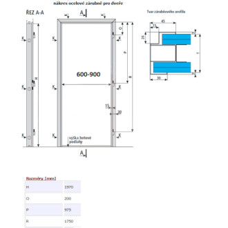
Moderní interiérové dveře, které budou ozdobou každého interiéru. Desková konstrukce s dřevěným rámem, voštinovou výplní, bílé matné sklo tl. 4mm, odolná 3D fólií v žádaném a velmi pěkném dekoru. Dveře lze osadit jak do stávající ocelové zárubně v české normě nebo do obložkové zárubně. Dveře 60 mají WC zámek (rozteč 72 mm) a pasuje k nim klika v provedení s WC knoflíkem.


