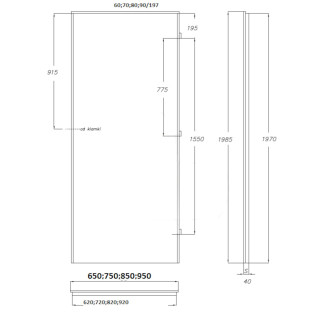
Interiérové dveře Naturel Aura pravé 70 cm jilm antracit AURA5JA70P
Interiérové dveře Naturel Aura pravé 70 cm jilm antracit AURA5JA70P
| Výrobce: | Výrobce: Naturel |
| Kód: | Kód: AURA5JA70P |
Moderní interiérové dveře, které budou ozdobou každého interiéru. Rámová konstrukce z MDF s kvalitní fólií v žádaném a velmi pěkném. Výplň je poskládána z panelů z MDF ve stejném dekoru a bílého matného skla tl. 4 mm. Zasklení bez zasklívacích rámečků působí velice estetickým dojmem. Dveře lze osadit jak do stávající ocelové zárubně v české normě nebo do obložkové zárubně. Dveře mají dozický zámek na klíč (rozteč 72 mm).
Mohlo by Vás zajímat


