Interiérové dveře Naturel Aura pravé 60 cm borovice bílá AURA2BB60P
Interiérové dveře Naturel Aura pravé 60 cm borovice bílá AURA2BB60P
| Výrobce: | Výrobce: Naturel |
| Kód: | Kód: AURA2BB60P |
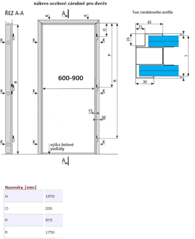
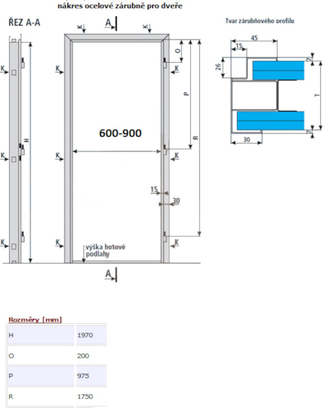
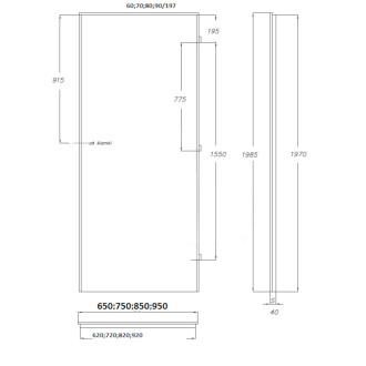
Moderní interiérové dveře, které budou ozdobou každého interiéru. Rámová konstrukce z MDF s kvalitní fólií v žádaném a velmi pěkném. Výplň je poskládána z panelů z MDF ve stejném dekoru a bílého matného skla tl. 4 mm. Zasklení bez zasklívacích rámečků působí velice estetickým dojmem. Dveře lze osadit jak do stávající ocelové zárubně v české normě nebo do obložkové zárubně. Dveře 60 mají WC zámek (rozteč 72 mm) a pasuje k nim klika v provedení s WC knoflíkem.
Mohlo by Vás zajímat


