Interiérové dveře Naturel Accra pravé 90 cm bílé ACCRACPLB90P
Interiérové dveře Naturel Accra pravé 90 cm bílé ACCRACPLB90P
| Výrobce: | Výrobce: Naturel |
| Kód: | Kód: ACCRACPLB90P |
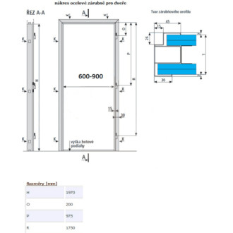
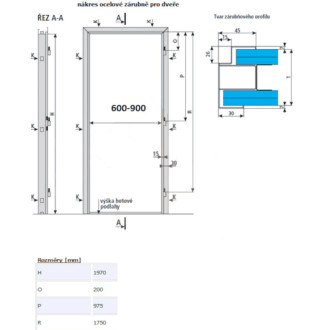
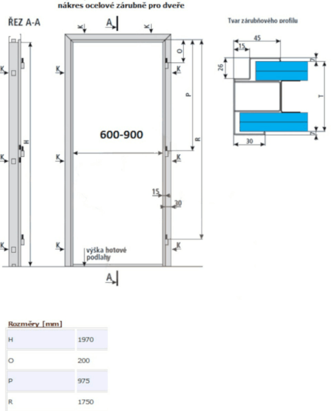
Moderní interiérové dveře Accra, které budou ozdobou každého interiéru. Rámová konstrukce z MDF s kvalitním CPL povrchem, který má lepší odolnost proti mechanickému poškození, poškrabání a lehkou údržbu. Výplň dveří je z voštiny a bílého matného skla tl. 4 mm. Zasklení bez zasklívacích rámečků působí velice estetickým dojmem. Dveře lze osadit jak do stávající ocelové zárubně v české normě nebo do obložkové zárubně. Dveře mají zámek na dozický klíč.
Mohlo by Vás zajímat


