Deskový radiátor Mexen Flat CF21 400 x 600 mm, boční připojení, 476 W, bílý - W421F-040-060-00
Deskový radiátor Mexen Flat CF21 400 x 600 mm, boční připojení, 476 W, bílý - W421F-040-060-00
🗓️ Kdy mohu očekávat doručení.
🚚 Jaké jsou možnosti doručení.
| Výrobce: | MEXEN |
| Adresa výrobce: | Vratimovská 681 80, Ostrava |
| E-mail: | info@mexen.cz |
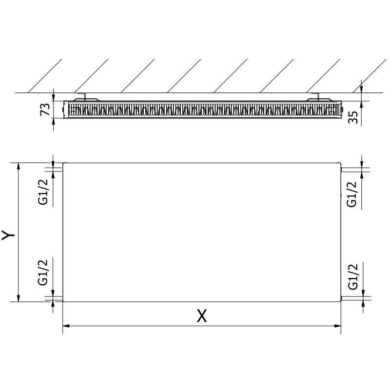
Technické údaje: Výška (Y): 400 mm Šířka (X): 600 mm Hloubka: 73 mm Rozteč připojení: 25 cm Rozteč svislých vodních kanálů: 33,3 mm Barva: Bílá RAL 9016 Materiál: Ocel Provozní teplota: max. 110 °C Maximální provozní tlak: 10 barů Maximální zkušební tlak: 13 barů Topný výkon: - 55/45/20 °C 251 W - 75/65/20 °C 476 W - 90/70/20 °C 598 W Připojení: - 4xG ½″ strana Vysoce kvalitní, odolný nátěr - DIN 99500 Má boční kryt a odnímatelný horní kryt Sada obsahuje: zavěšení, montážní sadu, záslepky a odvzdušňovací otvor Fotografie zobrazují radiátor ve velikosti 600 x 1200 mm.
Mohlo by Vás zajímat


