Deskový radiátor Mexen Flat CF11 900 x 1400 mm, boční připojení, 1527 W, antracit - W411F-090-140-66
Deskový radiátor Mexen Flat CF11 900 x 1400 mm, boční připojení, 1527 W, antracit - W411F-090-140-66
| Výrobce: | Výrobce: MEXEN |
| Kód: | Kód: W411F-090-140-66 |
🗓️ Kdy mohu očekávat doručení.
🚚 Jaké jsou možnosti doručení.
| Výrobce: | MEXEN |
| Adresa výrobce: | Vratimovská 681 80, Ostrava |
| E-mail: | info@mexen.cz |
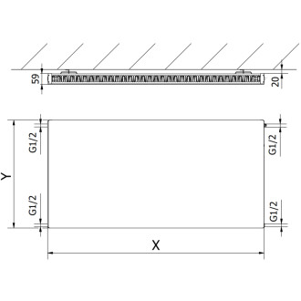
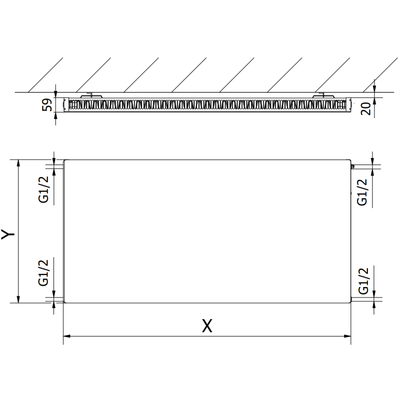
Technické údaje: Výška (Y): 900 mm Šířka (X): 1400 mm Hloubka: 59 mm Rozteč připojení: 25 cm Rozteč svislých vodních kanálů: 33,3 mm Barva: Antracitová RAL 7016 Materiál: Ocel Provozní teplota: max. 110 °C Maximální provozní tlak: 10 barů Maximální zkušební tlak: 13 barů Topný výkon: - 55/45/20 °C 812 W - 75/65/20 °C 1527 W - 90/70/20 °C 1914 W Připojení: - 4xG ½″ strana Vysoce kvalitní, odolný nátěr - DIN 99500 Má boční kryt a odnímatelný horní kryt Sada obsahuje: zavěšení, montážní sadu, záslepky a odvzdušňovací otvor Fotografie zobrazují radiátor ve velikosti 600 x 1200 mm.
Mohlo by Vás zajímat


